MOME CAMPUS
Moholy-Nagy University of Art and Design launched an international architectural competition in 2017 for the design of its new campus in Zugliget, Budapest.
MOME CAMPUS
Fields
Architectural competition
Moholy-Nagy University of Art and Design launched an international architectural competition in 2017 for the design of its new campus in Zugliget, Budapest.


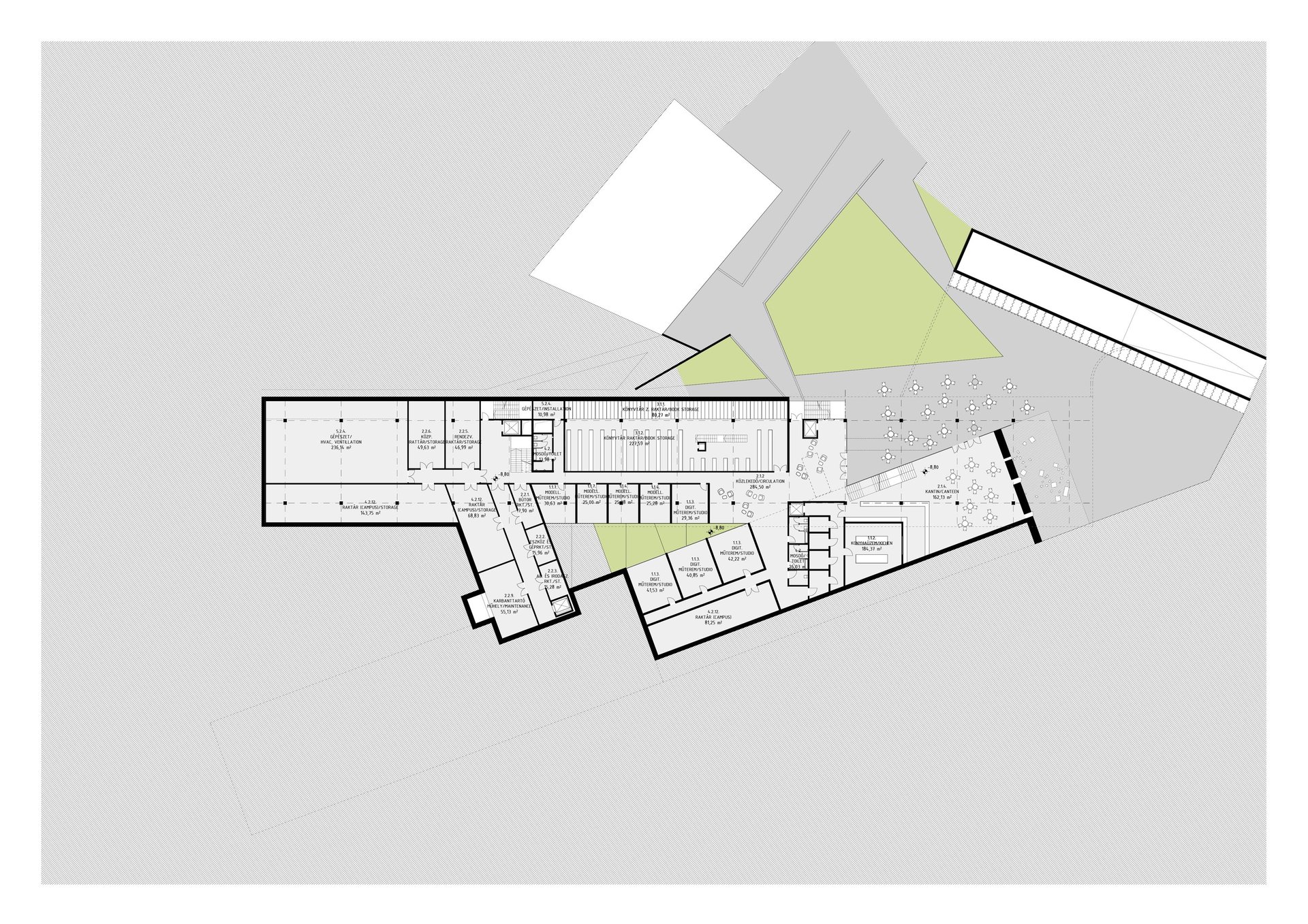
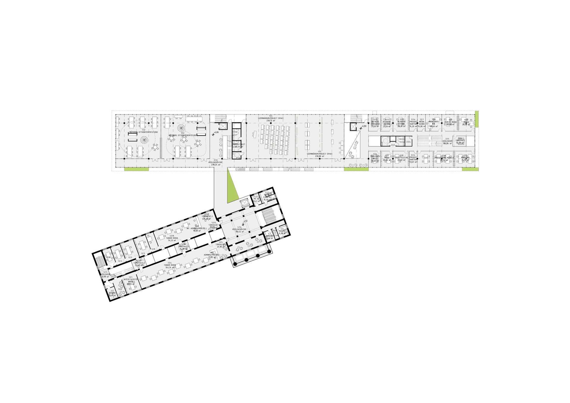
Moholy-Nagy University of Art and Design launched an international architectural competition in 2017 for the design of its new campus in Zugliget, Budapest. The aim of the competition was to create a contemporary, open and inspiring educational environment that actively supports creative learning and interdisciplinary collaboration. The brief challenged architects to rethink the traditional university campus as a flexible, community-driven space where education, experimentation and informal encounters could naturally intersect.
Strong emphasis was placed on adaptability, transparency and the relationship between indoor and outdoor spaces, as well as on responding sensitively to the natural surroundings of the site. Sustainability, long-term usability and architectural quality were key evaluation criteria. Our proposal was awarded Second Prize, recognising its conceptual clarity, spatial approach and its vision of the campus as an integrated framework for creative education and everyday academic life.














Architectural competition, 2nd prize
STUDIO NOMAD, SPORAARCHITECTS, PALATIUM STUDIO - Hatvani Ádám, Dékány Tibor, Vadász Orsolya, Tarcali Dávid, Pásztor Bence, Csapó Balázs, Korompay Attila, Lőcsei Vera, Kosik Péter
2017
Budapest, Hungary
Type
Design Team
Year
Location
Architectural competition, 2nd prize
STUDIO NOMAD, SPORAARCHITECTS, PALATIUM STUDIO - Hatvani Ádám, Dékány Tibor, Vadász Orsolya, Tarcali Dávid, Pásztor Bence, Csapó Balázs, Korompay Attila, Lőcsei Vera, Kosik Péter
2017
Budapest, Hungary
Type
Design Team
Year
Location









© 2025. All rights reserved.